Upper Richmond Road, London

2 bedroom Property

£3,000 PCM

  • 2 bedroom
  • 2 bathroom
  • 1 reception

Key Features

  • Luxury Penthouse Property
  • Two Double Bedrooms
  • Stunning Views of London
  • Unfurnished
  • Excellent Transport Links
  • Walking Distance of Restaurants and Shops

Description

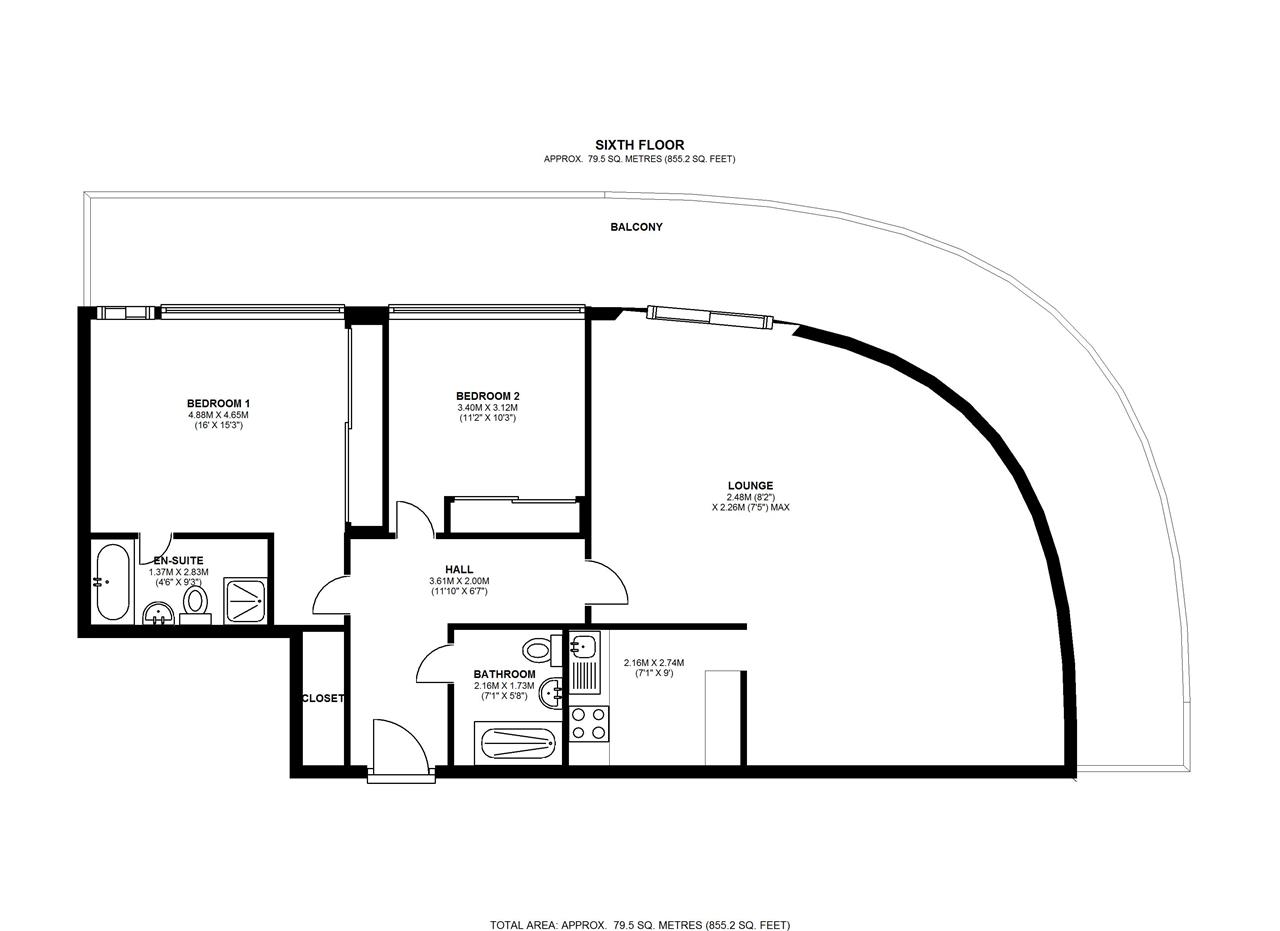
With panoramic views over Putney and beyond through the floor to ceiling windows and through the wrap around balcony. The accommodation comprises two double bedrooms, two bathrooms including one en suite, an open-plan reception room with fully fitted kitchen and a large wrap-around private balcony. Residents further benefit from a 24-hour porter and underground secure parking space. Transport links include East Putney underground. This sought after development is located moments from East Putney Tube Station (District Line) and only a short walk to central Putney and the main Putney Station (National Rail).


Location


Floorplan

Floorplan

EPC

EPC for London