Barchard Street, London

3 bedroom Terraced House for sale

£885,000

  • 3 bedroom
  • 2 reception

Key Features

  • Chain free
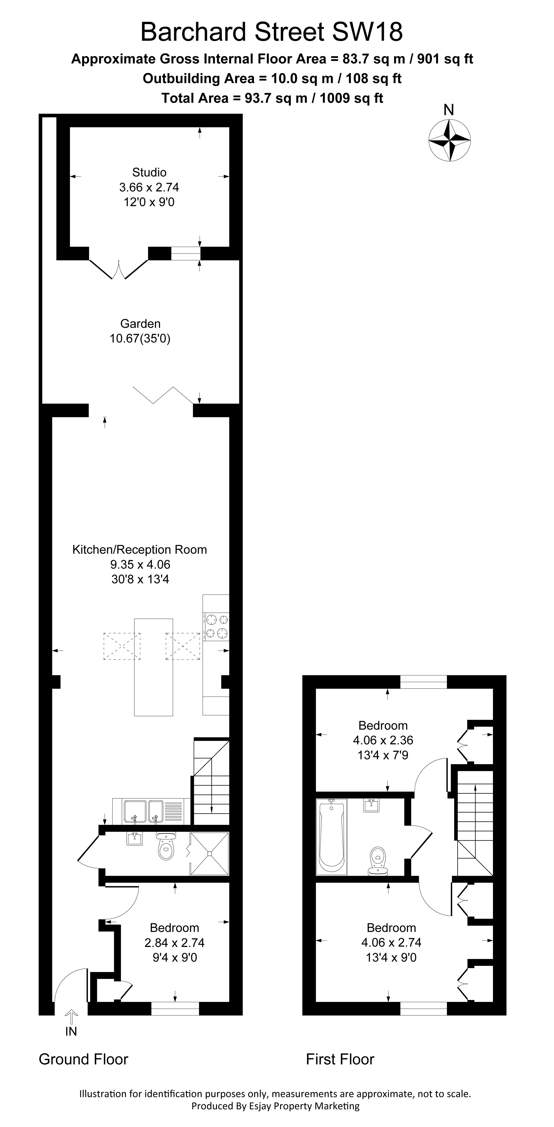
  • Over 1,000 sq ft of living space
  • Three double bedrooms
  • Open-plan kitchen/dining area
  • Integrated appliances with granite worktops
  • Oak flooring throughout ground floor
  • Private garden with outbuilding
  • Sought-after Wandsworth location

Description

Brinkley’s Estate Agents are delighted to present this well-proportioned and chain-free property on Barchard Street, Wandsworth, offering over 1,000 sq ft of internal living space and the added benefit of an outbuilding. This attractive home provides a fantastic balance of space and practicality, with a bright and spacious open-plan kitchen/dining area forming the heart of the property. The kitchen is fitted with integrated appliances, complemented by granite worktops and stylish oak flooring, creating a sociable and functional space ideal for both everyday living and entertaining. The accommodation is well laid out across two floors, offering comfortable bedroom space and versatile living throughout. To the rear, the garden leads to a useful outbuilding, perfect for use as a home office, studio, or additional storage. Further benefits include being offered to the market chain free, making it an ideal purchase for buyers seeking a straightforward transaction. Barchard Street is a popular residential road in Wandsworth, well known for its community feel and convenient location. The property is within easy reach of Southfields Underground Station (District Line), providing direct access into Central London. The green open spaces of Wimbledon Park and King George’s Park are nearby, along with a wide selection of local shops, cafes, and restaurants. The area is also well served by excellent local schools and transport links, making it highly desirable for both families and professionals alike. Early viewing is highly recommended.


Location


Floorplan

Floorplan

EPC

EPC for London